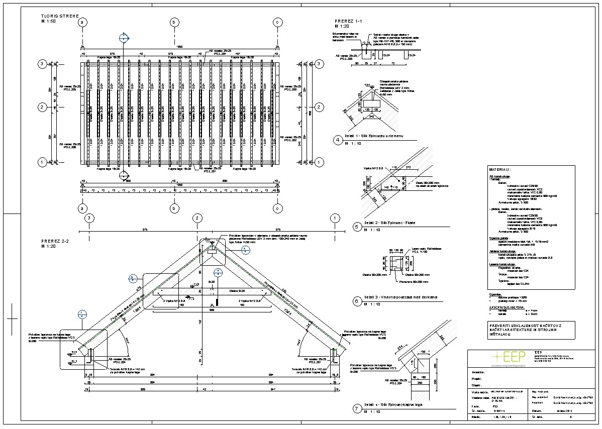
Kraj gradnje: Postojna, Slovenija
Obdobje projektiranja: 2015
Investitor: Privatnik
Nosilna konstrukcija: AB konstrukcija, jeklo in les
Opravljena storitev: načrt gradbenih konstrukcij v fazi PGD in PZI
Način projektiranja. BIM z uporabo Autodesk Revit-a



