Kraj gradnje: Ljubljana, Slovenija
Obdobje projektiranja: 2021-22
Naročnik: Automatic Servis d.o.o.
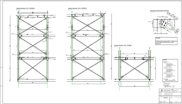
Nosilna konstrukcija: AB konstrukcija, Jeklena konstrukcija
Opravljena storitev: načrt gradbenih konstrukcij v fazah PZI in PID
Način projektiranja: BIM proces z uporabo Autodesk Revit-a



