Designs for the construction of a primary sewage (blackwater) treatment system.
Location: Venezuela
Year of construction: 2007
The Client: SNC – Lavalin International
Investment in structural work: €. 2.000.000.-
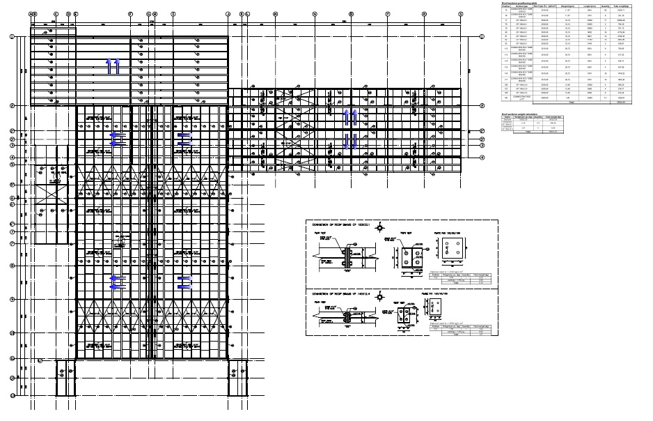
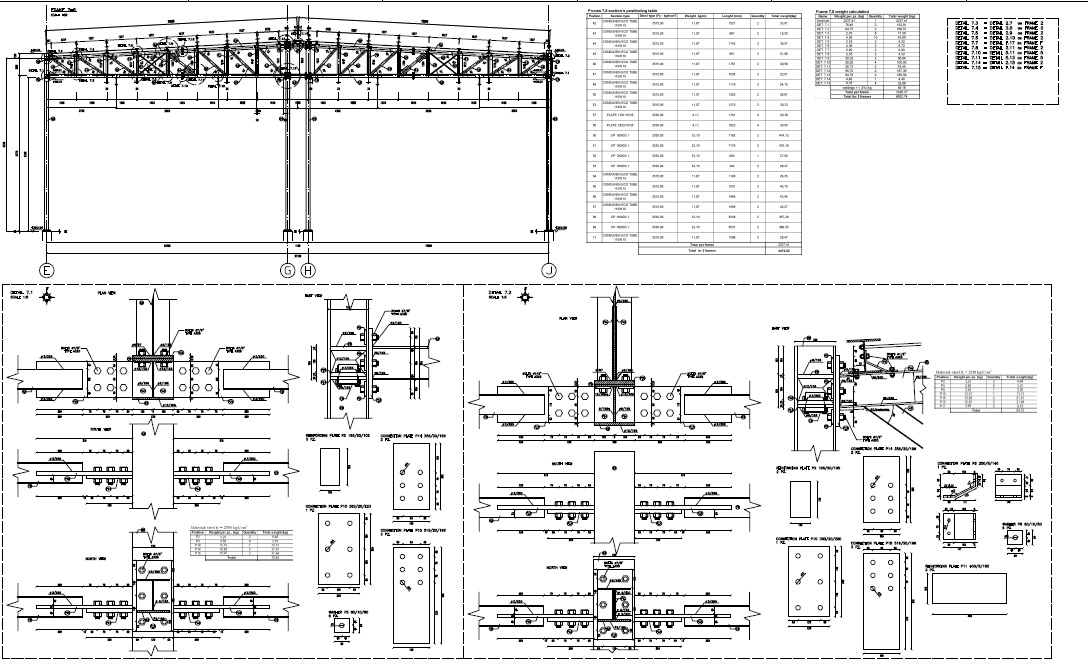
Load-bearing structure: RC plate and walls for pools and canals, steel structure for projecting roof
Service performed: Structural analysis of structures and construction plan in the Project for Execution (PZI) phase





