EEP d.o.o. | Partizanska 70 | SI - 6210 Sežana | Slovenia

European engineering project

Projects

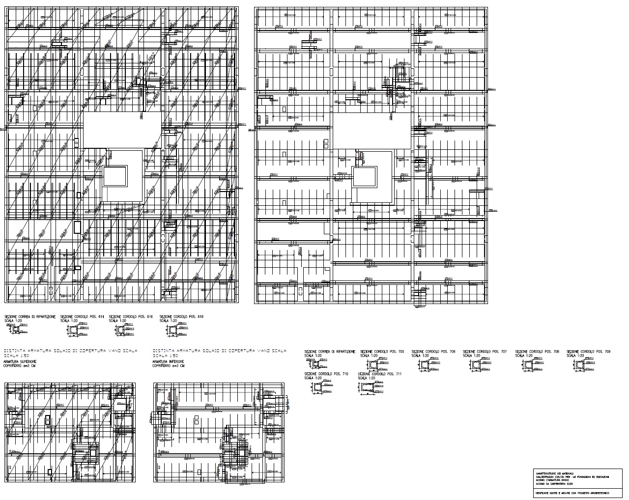
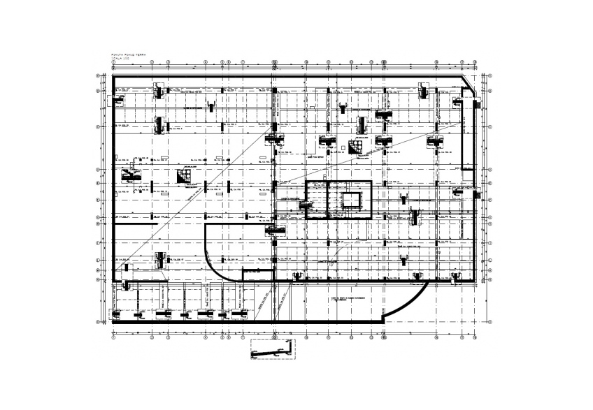
Construction of a six-storey multiple-unit residential building with a two-level underground garage

Commercial and residential buildings

Project ATER No. 565 – Construction of a six-storey multiple-unit residential building with a two-level underground garage, as part of urban requalification.

Location: Trieste, Italy
Year of construction: 2009 – in progress
Investor: ATER Trieste
Investment in structural work: € 850.000
Load-bearing structure: RC frame
Service performed: Construction Plan in the Design for Building Permit (PGD) and Design for Execution (PZI) project stages