Location: Ljubljana, Slovenia
Designing period: 2021-22
Client: Automatic Servis d.o.o.
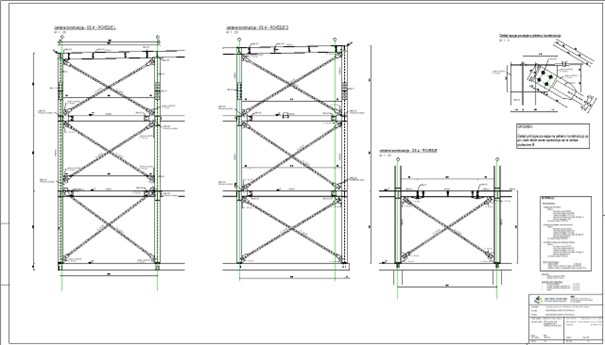
Type of structure: RC structure, steel structure
Service performed: Construction Plan in the Design for Execution (PZI) project stage and Project documentation of completed works (PID).
Engineering methodology used: BIM with Autodesk Revit



